北茨城市中郷町汐見ケ丘
| おすすめポイント | 【決算引渡価格】 駐車スペース5台 6m×6m角地で陽当り良好 人気のデザインリフォーム 食洗機付対面キッチン 浴室乾燥機・電動シャッター ヨークタウンまで車約5分 ≪自社物件につき仲介手数料0円≫ |
|---|
| 所在地 | 北茨城市中郷町汐見ケ丘一丁目1259-98 | 交通 | JR常磐線「南中郷」駅/約1.8km 北茨城市巡回バス「汐見ヶ丘一丁目」停留所/約300m |
|---|---|---|---|
| 価格 | 1798万円 (税込) | 建物面積 | 105.98m²/32.06坪 |
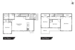
| 間取り | 4LDK | 建ぺい率・容積率 | 50% 80% |
| 土地面積 | 213.66m²/64.63坪 | 入居時期 | 即時 |
| 完成時期(築年月) | 平成28年10月 | 構造・工法 | 木造 |
| 土地の権利形態 | 所有権 | 設備 | ガス:無 /水道:公営 /排水:集中浄化 /駐車:有 /台数:5 |
| 用途地域 | 第一種低層住居専用地域 | 地目 | 宅地 |
| 備考 | 小学区:中郷第一小学校 中学区:中郷中学校 取引態様/売主 |
||












